培训特色
您当前的位置:首页   >文章详情页
地中海风格为主兼有简约风格、欧式风格的装修案例

 

  买过房子以后,可能金钱就所剩无几了,接下来的装修也是需要不少银子的,怎样以最少的银子获取最大的装饰效果,不仅是业主的最大心愿,也是设计师们需要挑战的问题,这里不到八万就装修好了90多平的房间,融合了几种装饰风格成就如今梦寐以求的最爱,尤其还附有平面图纸,也很适合参加室内设计培训学习的同学作为室内设计案例参考学习之用,一起来欣赏借鉴一下吧。
原始户型图
房屋原始户型图

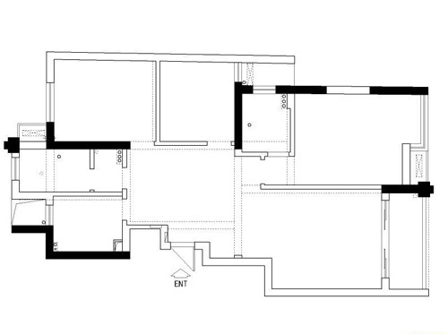
平面布置图
房屋平面设计布置图

1、大面积的蓝色和白色打造出清凉世界,稍有不同的是,沙发背景墙设计成充满童趣的背景,让这个空间多些活泼可爱。
地中海风格混搭a11501

2、电视背后的这抹蓝色是地中海风格中经典的蓝色,如同海洋的蓝色很容易将人带进清爽宜人的海边。

地中海风格混搭a11502

3、淡黄色的窗帘和带有花边的帘头、装满编织篮的薰衣草、充满复古感觉的边柜都增强了地中海风格。

地中海风格混搭a11503

4、客厅的一角打造出一个工作空间,嵌入墙体的隔板成为书桌,造型独特的黑色实木椅子耐人寻味。

地中海风格混搭a11504

5、嵌入墙体的书架不仅实用而且节省空间,拱形的边角也是地中海风格的一种体现。

地中海风格混搭a11505

6、餐厅同样是白色和蓝色为主的色彩,虽然餐桌是原始实木所做的地中海风格,但款式却加入了欧式风
格元素。
地中海风格混搭a11506

7、两盏朝上的壁灯将墙体的弧度完美呈现出来,同铁艺花纹装饰的玻璃隔断一起营造出精致的美感。

地中海风格混搭a11507

8、桌上的陶瓷花瓶依然插满迷人的紫色薰衣草,欧式和地中海两种风格水乳交融,你中有我、我中有你

地中海风格混搭a11508

9、餐厅的另一边是过道,餐厅的玻璃隔断在光线的映射下,妩媚又有朦胧的神秘感。

地中海风格混搭a11509

10、储物间看起来很宽阔,三面打造的柜子和置物架能最大限度的容纳各样杂物,并且能很好的分类收纳

地中海风格混搭a11510

11、主卧的一面墙打造成白色的推拉门衣柜,欧式的床头和床头柜上的台灯统一协调。

地中海风格混搭a11511

12、半面墙壁贴了马赛克图案的壁纸,动物图案的壁纸将墙面分成上下两段,床头同样是插满薰衣草的陶
瓷花瓶,暖色调的窗帘和蓝色细格带来温馨舒适的氛围。
地中海风格混搭a11512

13、孩子的房间以字母为装饰,在粉色方格的壁纸衬托下多彩又活泼,蓝色的布艺碎花床品和卡通图案的
床头清爽洁净。
地中海风格混搭a11513

14、床头带有欧式风格的床头灯散发出温馨的黄色灯光,床头镂空的米奇图案和床头柜的米奇相呼应。

地中海风格混搭a11514

15、通向儿童房的过道采用拱形嵌入式的置物架,摆放具有地中海风格的装饰品。与旁边卫生间拱形的门
很协调。
地中海风格混搭a11515

16、这个小相框很别致,利用实景创造出的立体效果画面,而且是充满欧式元素的装饰相框。

地中海风格混搭a11516

17、厨房是典型的现代简约风格,带有复古感受的地板和墙上同色的菱形墙砖相映成趣。

地中海风格混搭a11517

18、透明的玻璃将卫生间和浴室有效的区分开,同时也没有让空间显得局促,这是玻璃材质的优势所在。

地中海风格混搭a11518

19、洗脸盆的背景墙和台面同样采用马赛克墙砖,和卫生间一样一气呵成;可以转换角度的镜子是这里的
亮点。
地中海风格混搭a11519

20、深浅不同的蓝色方格墙砖依然带有浓浓的地中海风格,椭圆形的金边镜子带来奢华的感受。

地中海风格混搭a11520


你可能还想看一下:美式风格图片欣赏
24种时尚儿童房设计方案











友情链接

郑州设解读教育,依托自身具有设计公司的平台优势,努力打造在郑州室内设计教育行业中,具有一定影响力的专业品牌培训机构。
了解我们
微信关注

机构地址:郑州南环路与连云路交叉口南700米左右 电话:13903833301 QQ:1587879379

© 2010-2019 版权所有:郑州设解读教育 豫ICP备11003748号